Piel de Vidrio
Es un Sistema de Fachada Continua pensado para edificios de altura, compuesto por columnas que se toman a las losas y travesaños, que forman una trama sobre la cual se colocan las hojas. Los sistemas Piel de Vidrio, Frente Integral y Frame cubren todas las necesidades para la fabricación de fachadas vidriadas en todas sus variantes, respondiendo a los estándares de calidad de Aluar División Elaborados.

HOJA VIDRIO SIMPLE CON CONTRAVIDRIO

HOJA DVH CON CONTRAVIDRIO

HOJA VIDRIO SIMPLE CON CONTRAVIDRIO
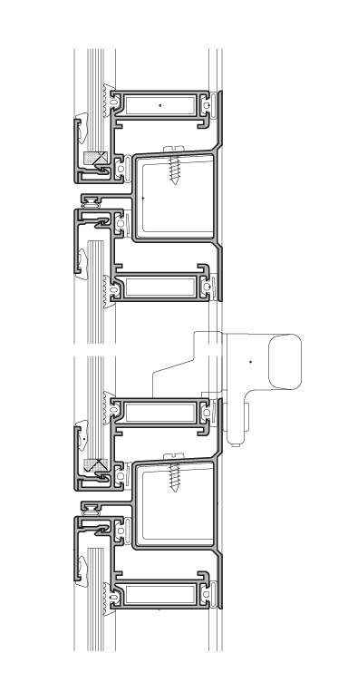
Sistema compuesto por columna, travesaño y bastidor para paño fijo o ventana desplazable. Sistema de movimiento y cierre: Ventanas desplazables con bisagras a fricción laterales y aldaba de cierre. Sistema de hermeticidad: Doble contacto con burletes de EPDM. Colocación de vidrio o DVH: Vidrio encapsulado, con contravidrio exterior, pegado con silicona estructural o pegado con cinta VHB estructural. Sistema de armado y montaje: Soporte de travesaño regulable encolizado en columna. Presillas regulables para montaje de hojas fijas. Anclaje tipo “H” para columnas.
Frente Integral
Es un Sistema de Fachada Continua diseñado para resolver fachadas comerciales, se compone de columnas y travesaños que se unen entre sí, permitiendo realizar paños fijos y, eventualmente, ventanas desplazables. Descripción: Sistema compuesto por columna, travesaño, tapa presora y tapa exterior. Sistema de movimiento y cierre: Ventanas desplazables opcionales con bisagras a fricción laterales y aldaba de cierre. Sistema de hermeticidad: Burletes de EPDM en tapa presora y columna/ travesaño. Colocación de vidrio o DVH: Entre columna / travesaño y tapa presora con burletes y sellado exterior. Sistema de armado y montaje: Escuadra tipo”U” entre columnas y travesaños. Anclaje tipo “H” para columnas
Frame
Es un Sistema de Fachada Continua concebido para optimizar los tiempos en obra y fabricar paños de gran tamaño, el armado se realiza en taller y en obra el montaje y el sellado.
Sistema modular compuesto por medias columnas, travesaño y ventanas proyectantes. Sistema de movimiento y cierre: Ventanas proyectantes de hoja colgada con bisagra corrida superior y falleba multipunto. Sistema de hermeticidad: Unión entre medias columnas con burletes de EPDM. Cámara para manejo secundario del agua. Sellado exterior. Colocación de vidrio o DVH: Pegado con silicona estructural. Sistema de armado y montaje: Unión en recto con tornillos entre medias columnas y travesaños. Anclaje especial regulable para columnas.