Janus – (tipo A30)
El estilo y elegancia de sus lineas redondeadas, sus amplias posibilidades constructivas y la variedad de tipologías, le ofrecen al arquitecto una herramienta de alta prestación en realización de proyectos.
Se pueden utilizar vidrio simple o doble vidrio hermético (DVH), en las corredizas de aplicación encapsuladas en las batientes con contravidrio de borde recto o curvo.
Resiste el paso del tiempo, sus perfiles no requieren ningún tipo de mantenimiento y admiten tratamiento superficial como el pintado o anodizado. Janus solo admite accesorios de alta calidad, lo cual garantiza un optimo funcionamiento de las aberturas en su uso cotidiano.

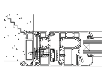
VENTANA Y PUERTA CORREDIZA CORTE 90º
2, 3 o 4 hojas corredizas. Sistema de movimiento y cierre: Ruedas inferiores regulables y cierres laterales simples o multipunto. Sistema de hermeticidad: Doble contacto con felpas de polipropileno y caja de agua. Espesor: 60mm Espesor de vidrio simple: 4 a 16 mm Espesor de DVH: 20 a 26 mm/28 a 34 con adaptador. Armado de marco y hojas: A 90° con tornillos Cierre multipunto

VENTANA OSCILOBATIENTE
1 o 2 hojas de abrir hacia el inperior coplanar o escalonada. Sistema de movimiento y cierre: Bisagras laterales y falleba multipunto/ mecanismo oscilobatiente. Sistema de hermeticidad:Triple contacto o camara compensadora de presiones con burletes EPDM. Espesor de vidrio simple: 4 a 16 mm Espesor de DVH: 18 a 32mm. Armado de marco y hojas: A 45° con escuadras de tracción

VENTANA DESPLAZABLE
1 hojas desplazable de abrir hacia afuera. Sistema de movimiento y cierre: Bisagras a fricción laterales con limitador de apertura y aldaba central con burletes EPDM. Sistema de hermeticidad:camara compensadora de presiones con burletes de EPDM. Espesor de vidrio simple: 4 a 16 mm Espesor de DVH: 18 a 32mm. Armado de marco y hojas: A 45° con escuadras de tracción

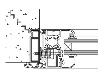
PAÑO FIJO
Paño fijo aleta lateral Sistema de RPT: Varilla de poliamida de 16 mm Espesor de DVH: 18 a 32 mm Armado de marco y hojas: A 45º con escuadras de tracción y escuadra rígida suplementaria